제품 소개

당신의 공기 안전한가요? 분진 없는 깨끗하고 안전한 작업환경을 추구합니다.

건강한 미래를 위한 솔루션! 정확하고 편리한 최첨단 디지털 방식의 솔루션

최고의 기술, 우수한 제품 미세먼지 없는 세상 (주)에이치에이씨가 함께하겠습니다.

대기오염방지시설

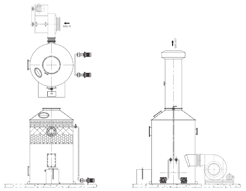
HSCC Series

스크러바 집진기

물에 용해되는 휘발성 유기화합물을 제거하는 데 가장 적합 화학공장, 도금공장, PCB 공장 등에서 사용

특징

  • 오염원의 특징에 따라 다양한 흡수액을 사용할 수 있음
  • 필터 처리 방식이 아니기 때문에 압력손실이 적음
  • 가스 유량의 변동이 있어도 일정한 제거 효율을 발휘
  • 다양한 동결방지 대책으로 겨울철에도 운전이 가능
  • SUS, FRP 재질로 제작 시 부식이 되지 않아 오랫동안 사용 가능

사양

사양